Подготовительные работы;Разработка индивидуального проекта
;Подготовка комплекта документов для согласования в БТИ
;Предварительный выезд инженера на строительный объект
;Пробное бурение фундамента в 3-х точках
Фундамент;Сваи железобетонные заводского изготовления, ГОСТ Р 19804-2012
;Размер ЖБ сваи 200х200х3000 мм
;Армирование 10 мм, бетон свай марки М300 B22,5)
;Армированный бетонный ростверк
;Песчаная подушка
;Высокопрочная арматура d12 мм класса АIII
;Бетон заводского изготовления, марки М300 (B22,5)
;Также, в зависимости от типа грунта и пожеланий заказчика доступны следующие виды фундамента:
;Свайно-винтовой, Ленточный, УШП
Закладные под коммуникации;Ввод закладных утепленных труб D110мм на глубину промерзания для подключения к септику (ЦК) и скважину/колодцу (ЦВ)
Домокомплект;Обвязка и устройство полов
;Обвязка из бруса 200х100мм
;Лаги 200х50мм
;Черновой пол доска обрезная 20-25мм
;Сетка от мышей
;Утепление пола 200мм Rockwool Парогидроизоляционные и ветро-влагозащитные пленки
;Подготовка для укладки ламината/паркета — фанера 18 мм и OSB-3 18мм
;Наружные стены и скаты
;Силовой каркас из бруса 150х80мм
;Утепление каменной ватой Rockwool 150мм
;Парогидроизоляционные и ветро-влагозащитные пленки
;Перегородки
;Каркас из бруса 50х100мм
;Звукоизоляция каменной ватой Rockwool 100мм
;Парогидроизоляционная пленка
;Отделка: Имитация бруса 130х18мм, сосна, сорт АВ или ГКЛ 12мм
;Двери межкомнатные Экошпон
Кровля;Кровельный профлист с покрытием РЕ 0,45 мм
;Конек плоский 150мм с покрытием РЕ
;Планки торцевые с покрытием РЕ
;Подшив свесов: Имитация бруса 130х18мм, сосна, сорт АВ с покраской в два слоя финской пропиткой TEKNOS
Ввод коммуникаций;Монтируем выводы закладных труб и гильз для прокладки коммуникаций в дом
;Электричество и электрооборудование
;Водоснабжение и водоотведение (канализация)
;Отопление
Теплоизоляция и звукоизоляция;Наружние стены — утеплитель ROCKWOOL или Paroc в 2 слоя (100 мм)
;Чердачное перекрытие — утеплитель ROCKWOOL или Paroc в 4 слоя (200 мм)
Окна;Оконные конструкции ПВХ REHAU Grazio, стандартных размеров. Толщина профиля 70 мм
;2-х камерный стеклопакет (3 стекла),
;5-ти камерный профиль (цвет белый), противомоскитные сетки
;Фурнитура: ROTO NT
Двери;Входная металлическая дверь с зимним утеплением. Производство: Россия
;4-й класс взломостойкости. Толщина металла 1,5 мм, замковая часть 3 мм
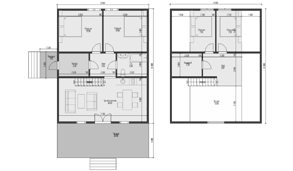
Внутренняя отделка;Лестница приставная на мансарду
;Полы:Половая доска из сосны 28мм
;В мокрых зонах цсп/гсп 10мм
;Гидроизоляция
;Стены:Имитация бруса 130х18мм, сосна, сорт ав
;Имитация бруса 130х18мм, сосна, сорт ав
Внешняя отделка;Отделка фасадов: имитация бруса 130х18мм, сосна, сорт АВ+заводская покраска TEKNOS: обрешетка, откосы
;Лестница входная в дом: террасная доска, сосна 1,2 м шириной
;Внешняя покраска бани финской краской Teknos. (нанесение 1 слоя грунтовки, покраска на 2 слоя)